L’agence vous propose à la vente une local commercial en excellent état situé dans le quartier du Loretto à Ajaccio.
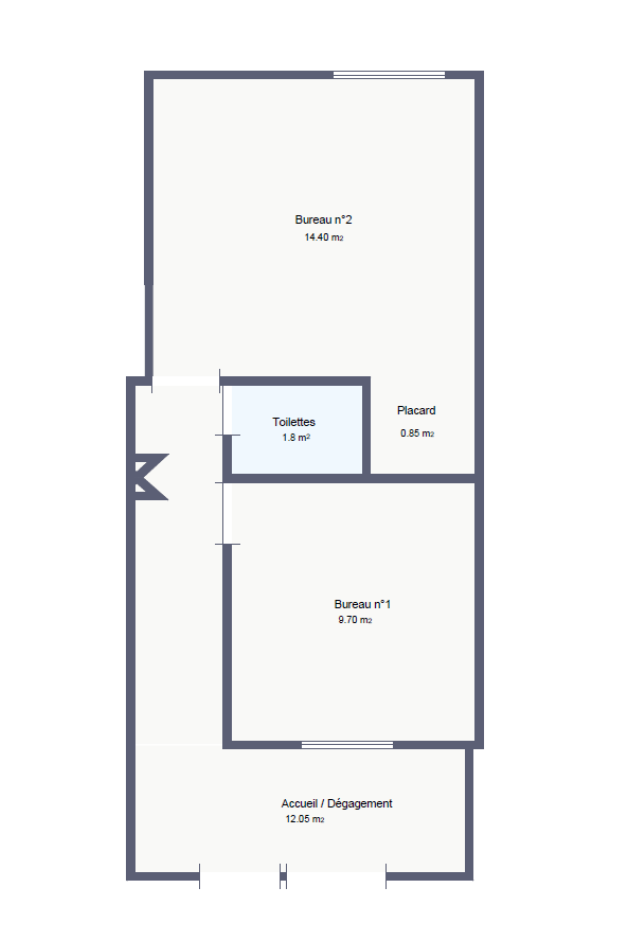
Il se compose : d’un accueil, d’un couloir desservant deux bureaux et un coin d’eau avec sanitaire.
Vitrine sur la rue. Local climatisé.
Parking avec barrière réservé a la copropriété.
Taxe foncière 412€


